Accommodation buildings for Suomenlinna prison
Suomenlinna prison is located on the eastern side of Iso Mustasaari Island. The buildings that dated back to the period of Swedish rule have been demolished, as have the later, Russian-built, storage buildings and wooden barracks.
On the south side of the prison, there are some reservoirs that were built in the nineteenth century. The vegetation is luxuriant and the landscape distinctive.
Previously, the prison was housed in two brick buildings dating back to Russian times and a number of accommodation, refectory and supervisory buildings of lightweight construction. Some of the accommodation buildings that were originally intended to be temporary have been demolished, while others have been thoroughly renovated. Four new buildings to house a total of forty prisoners have been built on the site of the demolished barracks.
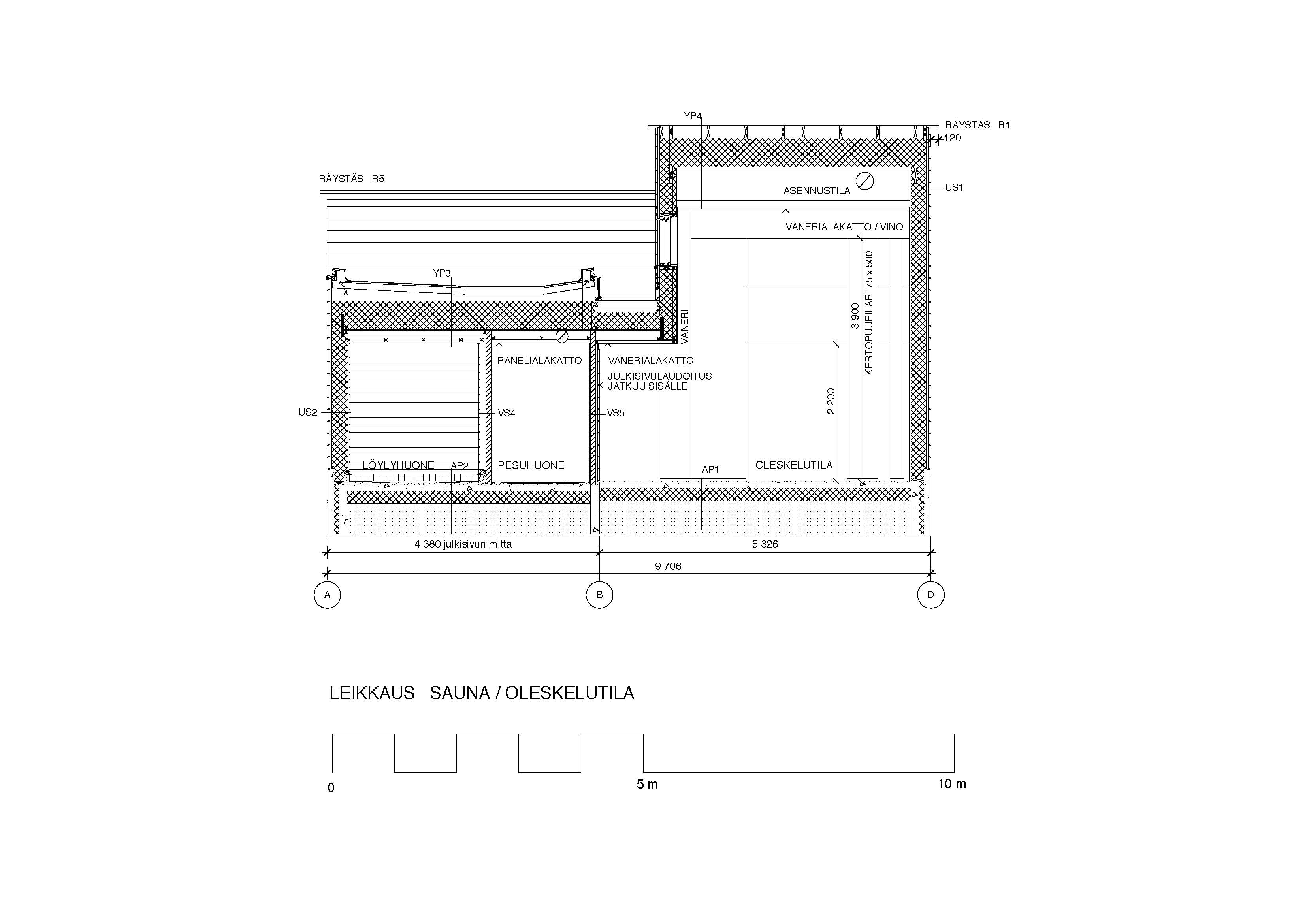
The new accommodation buildings are similar to each other and, together with a separate assembly building, line the edges of a wedge-shaped courtyard. The sloping roofs of the single-storey buildings are divided into two, lengthways, by pitches of different heights. These long, narrow, pitched roofs rise towards the perimeter of the complex. The highest parts of the roof house technical spaces and the upper parts of the common rooms.
Each of the buildings contains rooms for ten prisoners, a kitchen and common room, plus a sauna and auxiliary spaces. The degree of privacy in the living spaces can be adjusted with perforated plywood shutters on the inside of the narrow windows. The spaces have been planned so they can also be adapted for other purposes.
The first two accommodation buildings were built on site out of ‘long timber’, but in phase two, the frames of the buildings were constructed as prefabricated elements. External and internal cladding was fixed on site.
The horizontal external cladding is in eight-inch, tongue-and-groove, spruce planking. The external cladding is painted with oil paint, along with the doors and window frames. The sauna suite is finished in black, using oil-tar paint.
Internally, walls and ceilings are clad in plywood. Load-bearing columns and beams are in laminated timber or laminated veneer lumber. Internal surfaces are treated with a wood-coloured translucent finish.
Projekt in Kürze
Accommodation buildings for Suomenlinna prison
- Lage | Suomenlinna, Helsinki
- Verwendungszweck | Accommodation building
- Bauherr/Auftraggeber | Heikki Lahdenmäki, Tiina Koskenniemi / Suomenlinnan hoitokunta, Mikko Tikkanen / Suomenlinnan vankila, Tapani Jäderholm / ISS Proko Oy (supervision)
- Architektonische Planung | Kari Järvinen and Merja Nieminen Architects SAFA
- Tragwerksplanung | Vahanen Oy / Eero Kotkas, Kaarel Kets
- Hauptauftragnehmer | Finseula Oy / Uudenmaan Takuurakenne Oy
- Bilder | Jussi Tiainen