15.10.2024

Das Gymnasium- und Kulturzentrum Monio

Die durch ihre Kulturgeschichte und Kasernen bekannte Kommune Tuusula organisierte im Jahr 2017 einen öffentlichen Architekturwettbewerb für ein Gebäude mit Räumen für das Gymnasium, für die Volkshochschule und für mehrere Handwerks- und Kunstschulen und ferner für Bürgerdienste.

Die künftigen Benutzer des zu planenden Gebäudes, die Lehrer, die Schüler und andere, durften diesbezüglich ihre Ideen und Wünsche äußern. Der Zweck des Gebäudes war ein flexibles Umsetzen des nationalen Lehrprogramms, was auch Einfluss auf das Raumprogramm hatte.

Der Sieger war ein Beitrag, der einen in Blockholzbauweise zu realisierenden Baukörper des großen Gebäudes darstellte. Als Beitragsträger entpuppte sich ein helsinkier Büro junger Generation, Die AOR Architekten. Ein weiteres von demselben Büro geplantes Schulgebäude war damals in Jätkäsaari gerade im Bau, auch als Auftrag nach einem gewonnenen Architekturwettbewerb.

Das Kulturerbe von Tuusula ist bedeutend und in dem Landkreis stehen auch bemerkenswerte Blockhäuser, wie die im Jahr 1734 fertiggestellte Holzkirche, das nationalromantische Atelier des Kunstmalers Pekka Halonen vom Jahr 1902 und zahlreiche historische Familienvillen und Herrenhäuser. Es wurde vermutet, dass gerade die neue Schule diese starke Holzbautradition weiterführen würde. Tuusula ist bekannt auch für seine historische Garnison, in deren Areal die neue Schule im Bau ist und die zugleich als eine Formgebungsinspiration für diesen Neubau gilt.

Die weltgrößte Blockholzschule

Die künftigen Benutzer des zu planenden Gebäudes, die Lehrer, die Schüler und andere, durften diesbezüglich ihre Ideen und Wünsche äußern. Der Zweck des Gebäudes war ein flexibles
Umsetzen des nationalen Lehrprogramms, was auch Einfluss auf das Raumprogramm hatte.

Der Sieger war ein Beitrag, der einen in Blockholzbauweise zu realisierende Baukörper des großen Gebäudes darstellte. Als Beitragsträger entpuppte sich ein helsinkier Büro junger Generation, Die AOR Architekten. Ein weiteres von demselben Büro geplantes Schulgebäude war damals in Jätkäsaari gerade
im Bau, auch als Auftrag nach einem gewonnenen Architekturwettbewerb.

Das Kulturerbe von Tuusula ist bedeutend und in dem Landkreis stehen auch bemerkenswerte Blockhäuser, wie die im Jahr 1734 fertiggestellte Holzkirche, das nationalromantische Atelier des Kunstmalers Pekka Halonen vom Jahr 1902 und zahlreiche historische Familienvillen und Herrenhäuser. Es wurde vermutet, dass gerade die neue Schule diese starke Holzbautradition weiterführen würde. Tuusula ist bekannt auch für seine historische Garnison, in deren Areal die neue Schule im Bau ist und die zugleich als eine Formgebungsinspiration für diesen Neubau gilt.

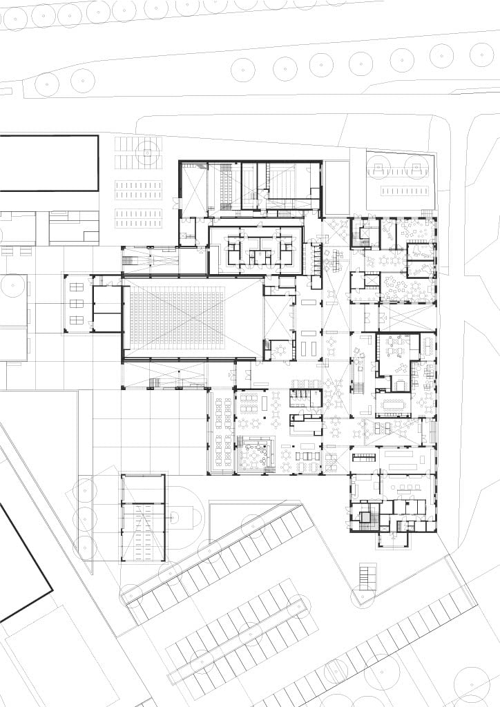
Fünf Blockhäuser unter einem Dach

Nach der Wettbewerbsphase haben die Architekten gemeinsam mit den Vertretern der Kommune Tuusula und der verschiedenen Nutzer ihren Beitrag weiter bearbeitet und veredelt. Monios Räume haben untereinander geschwungen und eine neue Stellung bekommen, jedoch die Änderungen wurden treu der ursprünglichen und sehr klaren, an die Umgebung des im alten Garnisonsgelände liegenden Parks Rykmen- tinpuisto angepassten Grundidee gemacht.

Das Resultat ist ein Gebäude mit vielen Dachfirsten, wo unter einem Dach etwa mehrere Haus-im-Haus-Bauten mit ihren Blockholzwänden stehen. Diese Hausteile sind durch zentralhallenartige Korridor- und Aufenthaltsräume miteinander verbunden. Der Zent- ralste darunter reicht bis auf die Höhe des gesamten Gebäudes. Das Konzept dieses allerwichtigsten Innenraums ist im Vergleich mit dem Anschauungsbild der Wettbewerbsphase unverändert.

Im Gebäude befinden sich, neben den hohen und niedrigeren Innenwegen, zwei größere Säle – das Gebäude soll ja auch ein die Aktivitäten des Gymnasiums ergänzendes Kulturgebäude sein. Die Säle der Schule sollen auch akustisch tadellose Räume für Musikaufführungen sein. Für wichtig wird befunden, dass dieses im zentralen Areal Tuusulas stehende Gebäude Licht und Aktivitäten bis späten Abendstunden hat.

Monio besteht zum größten Teil aus massivem Holz und die sichtbaren, klaren Blockholzflächen prägen das Gebäude. Jedoch in den Sälen und in ihren Fluchtwegen ist man zwangsläufig auf Betonkonstruktionen angewiesen.

Die Bauarbeiten wurden, um die Bauteile trocken zuhalten, unter großen Witterungsschutzplanen ausgeführt. Das Multifunktionshaus wird voraussichtlich im Jahr 2023 fertiggestellt.

Flexibilität für die Lehrräume und für vielerlei Nutzung

Früher hatten die Schulen Finnlands einzelne normale Klassenräume und Sonderklassenräume, die unter anderem für Physik und bildende Kunst bestimmt waren. Auch in Monio gibt es Sonderklassenräume, aber sonst basiert seine Raumlösung auf Flexibilität und Multifunktionalität und die Räume sind sowohl zusammenlegbar als auch in kleineren Einheiten teilbar.

Die staatliche Abiturprüfung bringt immer ihre eigenen Anforderungen für die Gymnasien: Alle Abiturienten absolvieren diesen wichtigen Examen gleichzeitig und in gemeinsamen Räumen. Auch in Monio gibt es einen einheitlichen und ausreichend großen, den Bedürfnissen eines ganzen Jahrgangs entsprechenden Raumkomplex, der für die Abiturprüfung ausgestattet werden kann und störungsfrei ist.

Die Abendaktivitäten in dem Multifunktionsgebäude stellen neue Forderungen für die Raumlösungen auf; die Konzerte und Aufführungen setzen Pausenkaffee und ausreichende Garderoben- und Sanitätsräume voraus. All dieses war in der Planung von Anfang an zu berücksichtigen, denn das Gebäude ist nicht nur für die Jugend, sondern für alle Einwohner der Kommune da.

Für die Kommune Tuusula ist das große Blockholzschul- und Kulturzentrumsprojekt sehr ehrgeizig. Es ist auch ein gutes Beispiel für ein Bauvorhaben, das anhand des finnischen, auch international anerkannten Architekturwettbewerbssystems realisiert wurde. Der Architekturwettbewerb war bei Monio außergewöhnlich ehrgeizig und das Wettbewerbsprogramm wurde mit den Methoden der Beteiligung im offenen Austausch gestaltet.

Technische Lösungen

Bauweise: Raumelement, Ebenenelement, vor Ort gebaut Das Gebäude ist bis zur Scheitelhöhe unter einem Wetterschutz aufgebaut. Der Hauptrahmen besteht aus Brettschichtholzstützen, WQ-Stahlträgern und Holz-Mehrrippenplatten-Zwischenbodenelementen. Der Rahmen des Gebäudes ist mit Brettschichtholzdiagonalen und Betontreppenund Aufzugsschächten ausgesteift. Die Blockwände sind eine vom tragenden Rahmen des Gebäudes getrennte Struktur und dienen sowohl als Außen- als auch als Trennwände. Die Wasserdachkonstruktion wird vor Ort aus Holz erstellt.Das Gebäude ist r bis zur Scheitelhöhe unter einem Wetterschutz aufgebaut. Der Hauptrahmen besteht aus Brettschichtholzstützen, WQ-Stahlträgern und Holz-Mehrrippenplatten-Zwischenbodenelementen. Der Rahmen des Gebäudes ist mit Brettschichtholzdiagonalen und Betontreppen- und Aufzugsschächten ausgesteift. Die Blockwände sind eine vom tragenden Rahmen des Gebäudes getrennte Struktur und dienen sowohl als Außen- als auch als Trennwände. Die Wasserdachkonstruktion wird vor Ort aus Holz erstellt. Zu den Betonteilen des Gebäudes gehören der Keller, die Treppenhäuser, der Aufzugsschacht, die öffentlichen Unterstände sowie die Wände und das Dach der beiden Hallen.

DIE MACHER

AOR Architects is a Helsinki-based architecture office specialized in public buildings, new learning environments and wood construction. The work of AOR has been awarded in numerous architecture competitions. Jätkäsaari School in Helsinki, completed in 2019, was the first major work of AOR and was nominated for the Finlandia Prize for Architecture in 2022. In 2021, AOR Architects was awarded the State Prize for Architecture for excellent success in architecture competitions and for the high-quality execution of buildings following competition wins.

Projekt in Kürze

Monio - Das Gymnasiumund Kulturzentrum

  • Lage | Tuusula
  • Verwendungszweck | Das Gymnasiumund Kulturzentrum
  • Bauherr/Auftraggeber | Gemeinde Tuusula
  • Valmistumisvuosi | 2023
  • Geschossfläche | 8 115 m2
  • Gesamtfläche | 8 773 m2
  • Volumen | 52 500 m3
  • Investointikustannukset | 33,2 Millionen€
  • Architektonische Planung | AOR Arkkitehdit Oy
  • Tragwerksplanung | A-Insinöörit Suunnittelu Oy
  • Akustiikkasuunnittelu | A-Insinöörit Suunnittelu Oy
  • Palotekninen suunnittelu | KK-Palokonsultti Oy
  • LVIA-suunnittelu | Sitowise Oy
  • Sprinklerisuunnittelu | Sitowise Oy
  • Elektrisches Design | Ramboll Finland Oy
  • Kooperationspartner bei Inneneinrichtung | Haptik Oy
  • Hauptauftragnehmer | Lujatalo Oy
  • Lieferant der Holzkomponenten | Kontiotuote Oy (hirret), VVR Wood Oy (Zwischenbodenelemente), Versowood Oy (Schichtholzträger und -diagonale), Puumerkki Oy (Kertopuuträger)
  • Bilder | Anders Portman, Kuvatoimisto Kuvio Oy
  • Text | Tarja Nurmi (kompiler: Mikael Merenmies)