17.8.2020

Painiitty Daycare Centre

At the daycare centre, which opened in 2015, the indoor and outdoor recreation spaces and their surroundings attract and activate children to exercise.

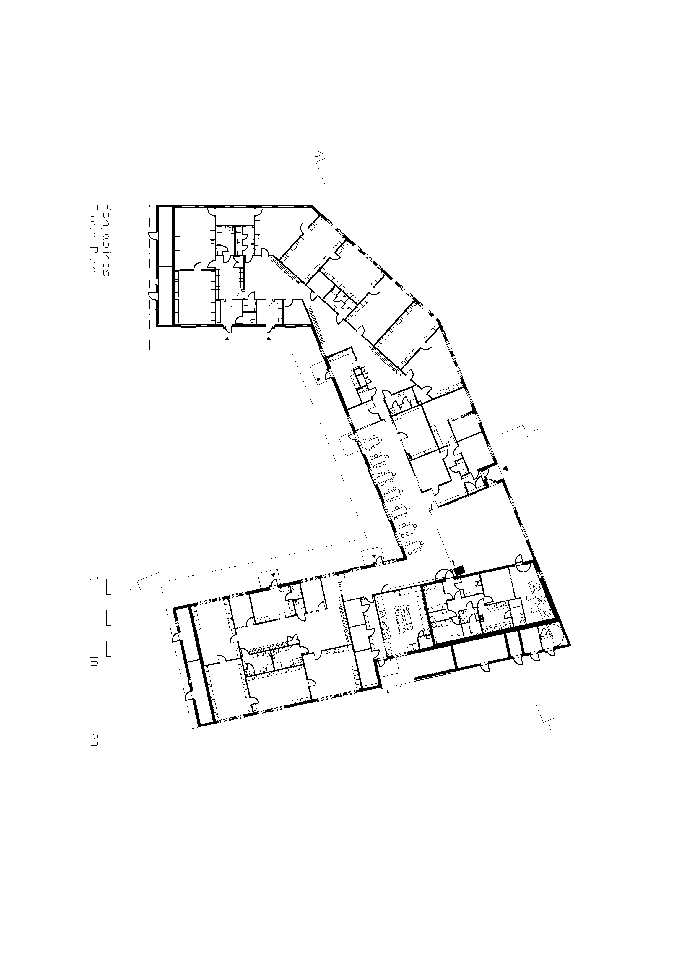
The daycare centre is located on the northern part of the property by the street, so the playground opens onto the south. The playground and maintenance areas are separated and located on different sides of the building.

The building is a roughly angular U-shape, whose outside and inside have their own character. The scale is largest on the outer circumference, tapering towards the road where the building’s highest point is located in the sharp northern corner. The inside of the U borders a sheltered, peaceful courtyard with the roof eaves overhanging its edges, which opens onto the playground in the south.

The entrance for evening use faces north towards the intersection of the streets, where the daycare centre and the surrounding blocks of flats border a plaza-like street area. The maintenance yard and parking spaces are located on the north-eastern side of the building.

The daycare centre’s group spaces are accessed through the playground. The hallways and cafeteria are located around the yard and are part of the daycare centre’s active areas. Other areas are located on the building’s outer ring. The personnel spaces and assembly hall are located in the middle of the building.

The facade materials emphasise the difference in the nature of the building’s different sides: actively colourful sheet metal cladding facing the street and a gentle, sheltered background with wooden cladding for children’s play.

The sheet metal cladding consists of different coloured vertical strips. The inspirations were rag rugs, coloured chalk, a row of books on a shelf and Native Americans’ wild war paints. The strips of the metal cladding are attached with a 1½ thick vertical seam (vertical angle rabbet). The strips’ horizontal welds are located “haphazardly” and the design avoids windows hitting the vertical seam, which allows for an implementation that is more organic in nature.

The wooden cladding on the courtyard side continues on the underside of the eaves overhang, and is painted white throughout. Finely sawn, 28 mm thick straight-edged notched panels with 5 mm slots were used for the wooden cladding. There are two panel widths, which when freely combined create a lively surface effect and at the same time facilitate the division of panels in the openings of the facade. Due to the smaller scale of the courtyard facade, it was possible to install cladding without extensions. The attachments were made with ribbed nails, taking into consideration sufficient edge and end distances of the attachments.

The building is mainly one storey and is constructed of wood; its fire class is P2. The ventilation equipment room is located in the attic above the civil defence shelter.

The structural solution is simple: uniformly wide, elongated construction optimised for the roof frame repeats the same cutting form for its entire length. The frame-structured exterior walls support shed roof frames canted towards the yard, which extend to support the overhanging eaves on the yard side. The building’s repetition is broken only when the building mass folds at the assembly hall and the ventilation equipment room. The simple basic solution aims for both cost-effectiveness and the proven, reliable technical functionality of the structure.

Project in brief

Painiitty Daycare Centre

  • Location | Lintuvaara, Espoo
  • Purpose | Daycare Centre
  • Constructor/Client | City of Espoo
  • Year of completion | 2015
  • Floor area | 1 676 m2
  • Total area | 1 820 m2
  • Volume | 7 498 m3
  • Investment costs | 4 750 000€
  • Architectural Design | AFKS Architects
  • Structural design | Insinööritoimisto Pontek Oy
  • HVAC design | Senewa group Oy
  • Electrical design | Insinööritoimisto Leo Maaskola Oy
  • Main contractor | Rakennuskultti Oy
  • Photographs | Mika Huisman
  • Text | AFKS Architects