Nuumäki daycare centre
The Nuumäki day-care centre is a pilot project run by the City of Espoo. Its specific intention is to promote the use of wood in industrial construction. Particular care has been paid to the design of exit routes, which has made it possible to use wood extensively not only in structures and outer surfaces but also indoors. The two-storey wood element building was constructed under the protective cover of a weather-proof tent.
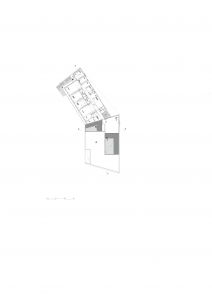
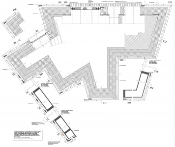
The day-care centre for five groups of children is located along the busy Lähderannantie road, on the eastern edge of a corner plot at the intersection of two streets. The oblong building folds in the middle, echoing the plot’s boundaries, allowing the creation of a separate service yard at the intersection. On the southwest side, the building marks off a sheltered and sunny playground with entrances from both floors of the children’s group spaces. The emergency exit on the second floor opens onto a side corridor constructed from steel mesh, which simultaneously shelters the building from excess sunlight.
With the exception of the base floor and the civil defence shelter, the entire building is constructed from wood elements. The outer walls are load-bearing, and the supporting column-beam structure running down the centre of the building is glue-laminated timber. The intermediate floor and roof elements use casing elements made from laminated veneer lumber.
The longitudinal slanting roof of the building slopes down on both ends, with water running off the roof into large gutters. The facades are decorated with three different widths of 42mm thick panel, which has been given a translucent, light-coloured coating. The entrance niche is made from dark fibre cement panels decorated with painted graphic elements. The steel structures retain their original hot-dip galvanised appearance.
The interior has been designed to give all the children’s facilities direct access outdoors or into the hallway. This enables the extensive use of wood in the building despite its P2-level fire classification. The inner surfaces of the outer walls are covered with three different widths of pine panels, just like the exterior walls. The suspended ceilings are constructed from pine lath elements. The facilities make extensive use of glass doors and partitions with wood frames to create more space and to improve safety and supervision. The wood surfaces have been treated with clear wax or varnish.
One of the day-care areas can also be used in the evening, and the multi-purpose hall and dining areas around it are also open to outside users.
Project in brief
Nuumäki daycare centre
- Location | Espoo
- Purpose | daycare centre
- Constructor/Client | City of Espoo, Espoo Premises Services
- Year of completion | 2016
- Volume | 6 207 m3
- Investment costs | 4 930 000€
- Architectural Design | Arkkitehtitoimisto 6B, Arkkitehtuuritoimisto Klemetti & Räty and Häkli architects
- Structural design | WSP Finland Oy
- Main contractor | Rakennusliike Evälahti Uusimaa Oy
- Photographs | Jussi Tiainen
- Text | Seppo Häkli and Pekka Heikkinen