16.9.2020

Pilke building

The Rovaniemi office of Metsähallitus has 135 employees and is home to the Pilke Science Centre, which introduces the sustainable use of northern forests. The building indicates the environmental policy of Metsähallitus. The carbon dioxide emissions of constructing Pilke are only one-third of the emissions of similar comparison buildings.

The building, completed in 2010, is a fine addition to the group of large wood-based office buildings. It is a beautiful part of the bank of River Ounasjoki and supplements the façade of the city. The facilities of the building are around two large, well-lit interiors. Users are spoiled with a magnificent view of the river.

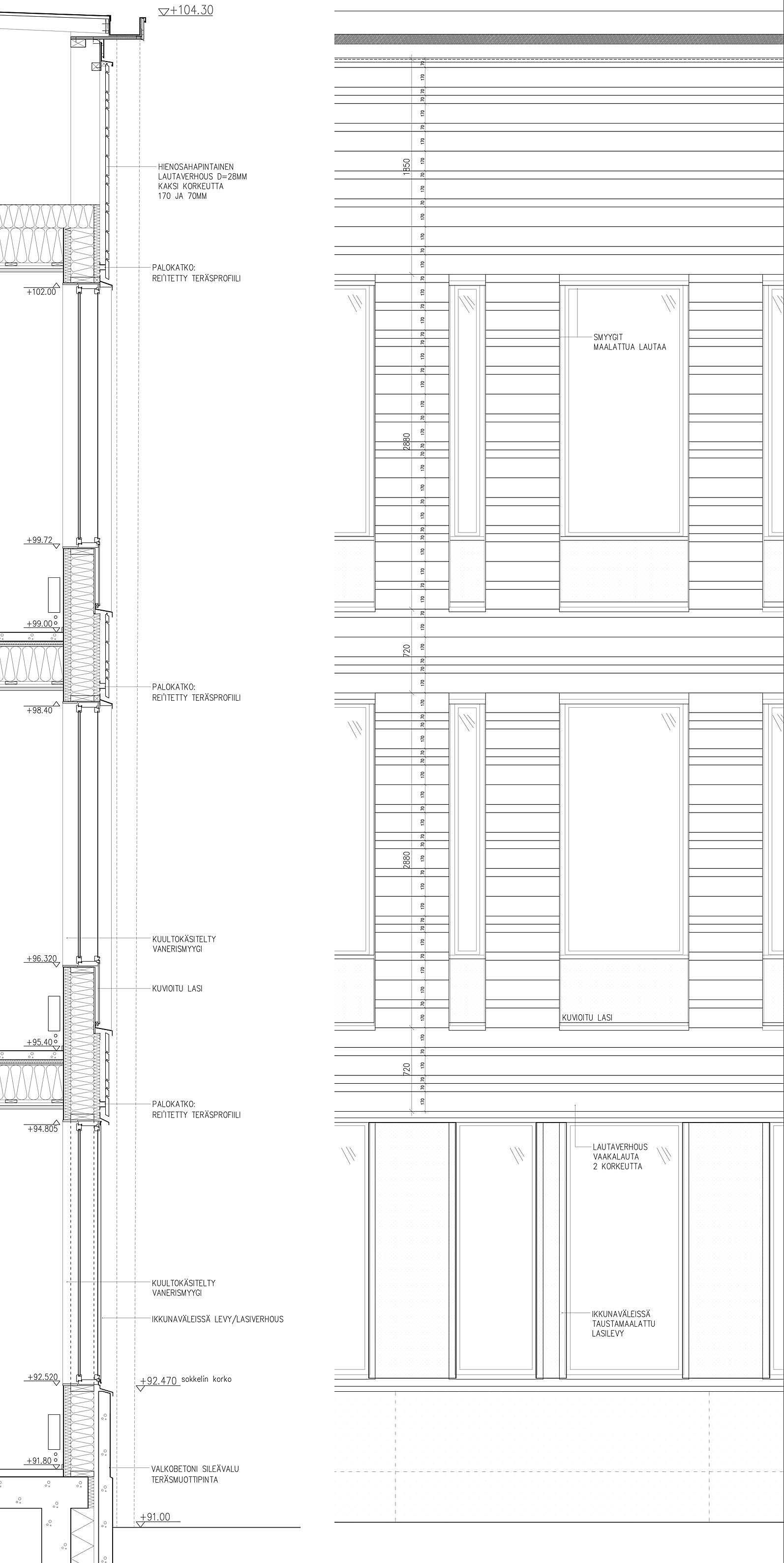
The wooden architecture of Pilke is brilliant and it uses the opportunities of wood in many different ways, both structurally and with surfaces. Wood has also been combined with other building materials in an appropriate and attractive fashion.

The building has a pillar beam structure of glulam, and the structure also shows in the interiors. The outer walls are onsite clad wooden elements. A large amount of wood has been used for the inner surfaces. The floor of the exhibition room is of wooden blocks. The building as such is a fine addition to the exhibition.

Pilke is a prime example of the competitiveness of wood in office construction. The project went below the budget by EUR 450,000. The building was implemented so that it was possible to organise competitive tendering for all the elements and deliveries.

Although the Wood Award is primarily an architectural award, this time the jury wants to also highlight the customer’s key role in the construction of the Pilke building. In addition to proper design and implementation, the goal orientation and consistency of the customer are essential when premium wooden architecture is the goal.

Finnish Wood Award 2011

Projekt in Kürze

Pilke building

  • Lage | Rovaniemi
  • Verwendungszweck | Office
  • Bauherr/Auftraggeber | Metsähallitus
  • Geschossfläche | 4 844 m2
  • Gesamtfläche | 5 589 m2
  • Volumen | 31 500 m3
  • Architektonische Planung | Artto Palo Rossi Tikka Architects
  • Tragwerksplanung | WSP Finland Oy
  • Hauptauftragnehmer | Lemminkäinen talo Oy (Palmberg-Rakennus Oy)
  • Bilder | Jussi Tiainen
  • Text | Metsähallitus