Osittain jäykät liitokset toimivat myös puurakenteissa – Kauppahalli Joensuu

Perinteisesti puisten rakenneosien voimaliitokset on suunniteltu ja analysoitu joko täysin nivelinä tai toisinaan jopa täysin jäykkinä, mutta todellisuudessa lähestulkoon kaikissa liitoksissa tapahtuu jonkin verran liitossiirtymiä ja -kiertymiä. Liitosten jäykkyys vaikuttaa siihen, kuinka rasitukset jakautuvat rakennemallissa ja millaisia kokonaissiirtymiä rakenteisiin muodostuu. Puurakenteissa liitossiirtymät on yleensä huomioitu rakenteiden kokonaissiirtymien määrityksessä, mutta ei välttämättä rasitusten jakautumista määritettäessä. Osittain jäykillä liitoksilla on mahdollista saavuttaa säästöä rakenteen kokonaiskustannuksissa ohjaamalla rasituksia kehän osille siten, että sekä rakenneosien ja liitosten käyttöasteet saadaan suunnilleen samalle tasolle. Erityisesti teräsrakenteiden suunnittelussa ja mitoituksessa osittain jäykkien liitosten käyttö on yleisempää ja Eurokoodi 3 osa 1-8 tarjoaa monipuolisemmat keinot liitosten jäykkyyden määritykseen.
Joensuun Kauppahallin primäärirungon analyysissa kävi jo varhaisessa vaiheessa selväksi, että liimapuisen kehärakenteen liitosten toteuttaminen täysin jäykkinä vaatisi liitosalueen pinta-alan kasvattamista rakenneosien dimensioita kasvattamalla tai kehänurkkien vahvistamista teräsosilla, mikä taas lisäisi rungon kokonaiskustannuksia. Kun analyysissa huomioitiin osittain jäykkien kehänurkkien vaikutus rasitusten jakautumiseen, myös liitokset pystyttiin toteuttamaan pilarien ja palkkien muodostamalla liitosalueella pelkästään liimapuuhun työstetyn loven ja ruuvien avulla.
Tässä artikkelissa käsitellään rakennuksen kaksikerroksisessa primäärirungossa käytettyjä voimaliitoksia sekä rakennuksen jäykistysjärjestelmää. Kohde on esitelty Puu-lehdessä 2/23.
Artikkelin osa puu-puu-voimaliitoksista on julkaistu Puu-lehdessä 3/23.
Rakennejärjestelmän kuvaus
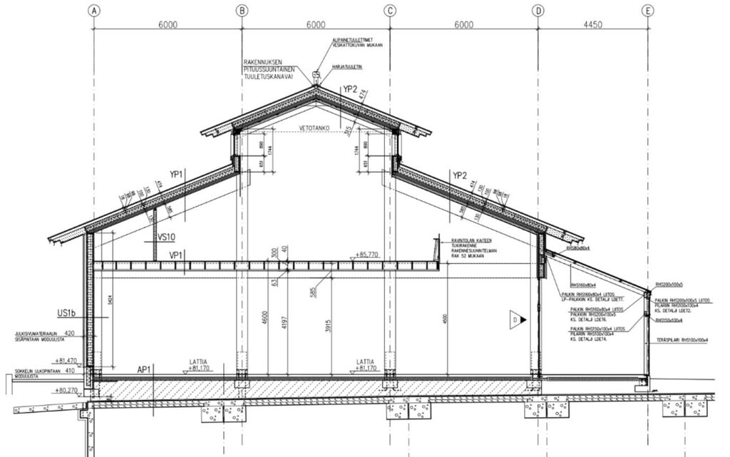
Joensuun Kauppahalli on rakennettu toriparkin kannen päälle. Kauppahallin kohdalta poistettiin pintarakenteet laatoituksesta aina vesieristeeseen asti, jolloin saatiin myös rakenteiden painoa pois kannen päältä. Toriparkin kannen kantava rakenne koostuu jännitetyistä TB-palkeista (650 x 880), joiden päällä on kuorilaatat (120 mm) sekä pintavalu (130 mm). Kuorilaattarakenteen päälle, poikittain jännitettyihin TB-palkkeihin nähden valettiin TB-peruspalkit (600…900 x 400). Näin toteutettuna uudelta rakenteelta ei kohdistu pistekuormia kuorilaattarakenteelle ja samalla saatiin oikaistua vaakasuora perustamistaso uusille rakenteille, vedenpoistojen takia kaltevaksi tehdylle pinnalle. Peruspalkkien päälle valettiin matalat peruspilarit siten, että liimapuupilarien alapäät ovat lattiapinnan tasolla.

Lattiapinnasta ylöspäin kantavat rakenteet ovat lähes kokonaan puuta, mikä oli myös tilaajan toiveena suunnittelua aloitettaessa. Sivulle tehty lasipaviljonki toteutettiin teräsrungolla, jotta rakenneosat saatiin hoikemmiksi ja päätyyn sijoittuvalle parvekkeelle tehtiin kehärakenteet teräksestä, koska ulkona olevat kehät altistuvat ankarammille sääolosuhteille.
Primäärirunko koostuu 4 metrin välein asennetuista liimapuukehistä, joita on rakennuksessa 11 kpl. Liimapuukehien mekaanisilla liittimillä kootut pilarit (2 kpl GL30c 140 x 450) nousevat peruspilarien päältä vesikattoon asti. Välipohjan ja alemman vesikaton primääripalkit (GL30c 165 x 585) sekä ylemmän vesikaton primääripalkit (GL30c 165 x 315) on asennettu koottujen pilarien sisäpuolelle tehtyyn loveen, jolloin lovi osaltaan toimii liitosta jäykistävänä osana. Ylemmällä vesikatolla on rakenteena hyödynnetty kolminivelkattotuolia, jossa liimapuisten yläpaarteiden (GL30c 165 x 315) lisäksi on käytetty teräksistä vetotankoa (Halfen Detan-S Ø20 mm), joka estää ylempien kattopalkkien alapäiden vaakasuuntaisen siirtymän murtorajatilassa. Palotilanteen tarkastelussa rakenne kestää ilman teräksistä vetotankoa, jolloin se voidaan jättää laskentamallista pois ja sitä ei tarvitse erikseen palosuojata.

Välipohjissa primääripalkkien väliin on asennettu 1-aukkoiset sekundääripalkit (LVL 45 x 300 k600), joiden päällä on paksu havuvaneri. Vaneri jatkuu yhtenäisenä primääripalkkien yli muodostaen vaakasuuntaisen jäykän levykentän, joka pystyy jakamaan vaakakuormia jäykistäville pystyrakenteille. Yläpohjarakenteessa primääripalkkien päälle on asennettu 130 mm CLT levy (L5-130/30-20-30-20-30). CLT levyt on toteutettu 1-aukkoisina ja ne on liitetty lapaliitoksilla toisiinsa kummassakin suunnassa. CLT-levyt on kiinnitetty lapaliitoksen läpi vesikaton primääripalkkeihin ylhäältä päin ruuvaamalla. Myös CLT-levyt muodostavat jäykän levykentän, joka pystyy jakamaan kuormaa jäykistäville pystyrakenteille.
Rakennuksen lyhyemmässä suunnassa jäykistysjärjestelmään on huomioitu vain liimapuukehät, jotka pystyvät siirtämään pystykuormien lisäksi myös kaikki vaakakuormat hallitusti perustuksille. Rakennuksen kummassakin päädyssä on umpinaista ulkoseinää, jonka molemmissa pinnoissa on jäykistykseen soveltuvaa rakennuslevyä ja nämä varmasti osaltaan siirtävät vaakakuormia ja estävät mahdollista epäkeskeisestä tuulenpuuskasta aiheutuvaa rungon kiertymää, mutta laskennallisesti näitä ei jäykistysjärjestelmään tarvitse huomioida.

Rakennuksen pituussuuntaiset vaakakuormat on johdettu perustuksille jäykistävien seinärakenteiden avulla. Ensimmäisessä kerroksessa pituussuuntaiseen jäykistykseen huomioitiin hissikuilun ja toriparkista nousevan porrashuoneen valuharkkoseinät sekä liiketilojen väliin tehty havuvanerilla jäykistetty puurankaseinä. Perinteisesti vaakakuormat jaetaan jäykistäville pystyrakenteille jäykkyyksien suhteessa eli mitä jäykempi seinä, sitä suuremman osan vaakakuormasta se ottaa. Toisinpäin havainnollistettuna, jos jokaisen jäykistävän seinän yläreunan on siirryttävä esimerkiksi 10 mm, laskennallisesti voidaan arvioida, kuinka suuri vaakasuuntainen voima jäykistävän pystyrakenteen yläreunaan on kohdistettava, jotta rakenteeseen muodostuu ennalta määrätty vaakasiirtymä.
Joensuun Kauppahallin ensimmäisen kerroksen jäykistävistä pystyrakenteista betonirakenteet (200mm paksu betoniharkkoseinä (kuva 5, J3); pituus 5,3 m ja korkeus n.4 m sekä betoniharkkorakenteinen hissikuilu (kuva 5, J2); U-poikkileikkaus 150 mm paksuilla seinillä) ovat perinteisessä ajattelussa huomattavasti jäykempiä kuin vanerilevyillä jäykistetty rankaseinä (kuva 5, J1). Näin ollen betoniseinät dominoivat jäykistysjärjestelmässä eli ne ottavat suurimman osan vaakakuormista, jos jäykistävä vaakarakenne liitetään jäykästi jäykistävään pystyrakenteeseen. Kohteen jäykistysjärjestelmän vaakakuormien jakautumista ohjattiin siten, että jäykistysjärjestelmä saatiin tasapainoon ja jäykkyyseroista aiheutuva kiertymä saatiin poistettua. Lähtökohdaksi otettiin vanerilevyillä jäykistetty rankaseinä (Kuva 5, J1) linjalta MOD-C, jolle määritettiin yläreunan vaakakuormaksi puolet koko rakennuksen pituussuuntaisista vaakakuormista. Vaakakuormiin huomioitiin tuulikuorman lisäksi pystykuormista aiheutuvat lisävaakavoimat. Jäykistävien vanerilevyjen kiinnikkeet määritettiin siten, että seinä pystyy siirtämään kuormat välipohjan tasosta perustustasolle ja lisäksi määritettiin jäykistävän seinän vaakasuuntainen siirtymä valitulla kiinnike-levy -yhdistelmällä. Välipohjan liitos jäykistäviin betonirakenteisiin (J2 ja J3) suunniteltiin puurakenteiden puikkoliittimillä (nauloilla) siten, että betonirakenteille johdetaan naulojen välityksellä yhteensä yhtä suuri vaakavoima, kuin vanerilevyillä jäykistetylle rankaseinälle. Lisäksi betoniseinien liitoksen jäykkyys määritettiin laskennallisesti siten, että välipohja betoniseinän päällä siirtyy samalla voimalla yhtä paljon, kuin vanerilevyillä jäykistetty rankaseinä. Näin toteutettuna linjat MOD-B ja MOD-C ottavat yhtä suuret osat rakennuksen pituussuuntaisista vaakakuormista ja linjat siirtyvät pituussuunnassa yhtä paljon, vaikka lähtökohtaisesti betonirakenteet olisivat huomattavasti jäykempiä ja keräisivät suuremman osan voimasta, jos liitos tehtäisiin jäykkänä. Tässäkin kyseessä on osittain jäykkä liitos, joka vaikuttaa voimasuureiden jakautumiseen rakennejärjestelmässä. Linjoille MOD-A ja MOD-D ei tarvita ollenkaan pituussuuntaisia jäykistäviä seiniä ja linjalla MOD-E lasipaviljongin teräspilarit muodostavat pituussuuntaan kytkettyjen mastojen järjestelmän ja pystyvät siirtämään lasipaviljongin vaakakuormat kattotasosta perustuksille.

Toisessa kerroksessa rakennuksen pituussuuntaiset vaakakuormat siirrettiin välipohjan tasolle kipsilevypintaisilla puurankaseinillä, jotka ovat keskenään suunnilleen tasajäykkiä ja joiden mitoitus ei poikkea perinteisestä menetelmästä. Näin ollen vesikattotasoon kohdistuvat vaakakuormat jakautuvat tasaisesti 2. krs jäykistäville seinärakenteille ja edelleen välipohjan levykentälle, joka välittää vaakakuormat 1. krs jäykistäville seinärakenteille.

Osittain jäykän loviliitoksen toimintaperiaate
Ruuveilla kootun loviliitoksen kestävyys ja jäykkyys koostuu kolmesta komponentista: osien välisestä tukipaineesta, osien välisestä kitkasta tai muuten muodostetusta leikkauskestävyydestä sekä puikkoliittimistä. Tarkasti sovitetussa lovessa tukipaine vastustaa liitoksen kiertymistä loven reunoilla ja siirtää samalla pystykuormia osalta toiselle. Lovetussa liitoksessa tukipaineen muodostama kestävyys ja jäykkyys määräytyvät pehmeämmän liittyvän osan mukaisesti eli yleisesti puurakenteessa sen osan, johon rasitus kohdistuu syytä vastaan kohtisuorasti tai lähes kohtisuorasti (eli yleensä palkin pinnassa puun syyt painuvat kasaan ja pilari säilyttää muotonsa). Tukipainekestävyyden myös loviliitoksen tapauksessa pystyy määrittämään Eurokoodi 5 (EC5) kohtien 6.1.4, 6.1.5 sekä 6.2.2 mukaisesti.


Liittyvien osien välinen kitka pystyy vastustamaan liitoksen kiertymää sekä siirtämään pystykuormia rakenneosalta toiselle. Kitkavoima muodostuu sitä suuremmaksi, mitä karheammat pinnat, mitä parempi kontakti liitosalueella on (kitkakerroin) ja mitä suurempi puristava voima liitosalueelle saadaan muodostettua. Puurakenteiden osalta kitkavoiman muodostuminen ja pysyvyys on kuitenkin niin epävarmaa, että se on syytä jättää huomioimatta mitoituksessa. Tämänhetkinen EC5 ei tarjoa menetelmää osien välisen kitkan huomioimiseksi, vaikka siitä olisi selkeästi hyötyä esimerkiksi puukerrostalojen jäykistyslaskennassa. Puurakenteiden kiinnikevalmistaja Rothoblaasin valikoimasta löytyy liitosalueen kitkapinnalle asennettava kynsilevy (Rothoblaas SHARP METAL -levy), joka toimii mekaanisena liitoksena puuosien välillä, kun liitospinnalle tuotetaan riittävä puristava voima esimerkiksi leveäkantaisilla osakierreruuveilla. Liitospinnan liimaus ei tule kyseeseen yhdessä puikkoliitinten ja tukipaineen kanssa, koska yleisesti jälkimmäiset alkavat toimia vasta kun liimaliitos murtuu. Vaihtoehtoisesti liimauksen olisi oltava niin joustava, että liimaus, tukipaine ja puikkoliittimet pystyisivät ottamaan rasitusta vastaan samanaikaisesti.
Liitospinnan läpäisevät puikkoliittimet pystyvät siirtämään kuormia rakenneosalta toisella ja estävät tehokkaasti myös liitoksen kiertymää. Puikkoliitoksen kestävyys pystyään määrittämään EC5 luvun 8.2 mukaisesti ja liitossiirtymät kohdan 7.1 mukaisesti. Loviliitoksen puikkoliittiminä pystytään käyttämään esimerkiksi ruuveja tai pultteja. Pulttiliitoksen osalta selkeät laskentaohjeet löytyvät useammasta lähteestä, 3-nivelkehän nurkkaliitoksen mitoitusesimerkkinä ja samoja periaatteita pystytään noudattamaan myös ruuviliitoksen suunnittelun ja mitoituksen yhteydessä. Ruuvitoimittajan tarjoamasta ETA -dokumentista (European Technical Assessment) löytyy valmistajakohtaiset ohjeet ruuvin kestävyyden ja siirtymäominaisuuksien määritykseen. Myös metallisten vaarnatappien tai puutappien (kovapuu) käyttö olisi mahdollista, kunhan liitoksen avautuminen estetään ruuveilla tai pulteilla. Puurakenteiden puikkoliitoksissa yleisperiaatteeksi on ohjeistettu, että paljon pieniä liittimiä johtaa yleensä parempaan ja luotettavampaan lopputulokseen kuin vähän järeitä liittimiä, koska pieniä liittimiä käytettäessä ei muodostu niin suuria paikallisia rasitushuippuja, jotka voisivat halkaista tai muuten vaurioittaa liitettävää puuosaa. Pienet liittimet siis jakavat rasituksen tasaisemmin ja suuremmalle alalle ja lisäksi yksittäisen liittimen heikkous ei muodostu niin merkittäväksi koko liitoksen kestävyyden näkökulmasta.
Puikkoliittimin toteutetun liitoksen jäykkyyttä pystytään arvioimaan määrittämällä yksittäiseen puikkoliitimeen kohdistuva leikkausrasitus, kun liitosta rasittaa pelkästään kehän nurkan momentti (MEd) [kNm]; pystykuormat siirtyvät lovetussa liitoksessa osalta toiselle tukipaineen välityksellä. Yksittäisen liittimen liitossiirtymän suuruus (u) [mm] pystytään arvioimaan siihen kohdistuvan suurimman mahdollisen leikkausrasituksen (Fv,Ed= Fv,Rd) [N] ja liittimen siirtymäkertoimen (tarkastelusta riippuen Kser tai Kser,fin tai Ku) [N/mm] perusteella. Siirtymäkerroin pystytään määrittämään EC5 luvun 7 mukaisesti, luvun 2 lisäehdot ja mahdollisesti myös puikkoliittimen ETA-dokumentti huomioiden. Kun yksittäisen liittimen liitossiirtymä (u) [mm] jaetaan ympyräkehän säteellä (r) [mm], saadaan selville liitoksen kiertymä (φ) radiaaneina riittävällä tarkkuudella. Tavanomaisissa tilanteissa liitosiirtymien suuruudet liikkunevat millimetrin osissa tai korkeintaan yksittäisissä millimetreissä, joten suora siirtymä on suunnilleen yhtä suuri kuin ympyrän kehää pitkin mitattu siirtymä, jolloin eroavaisuus radiaanin tarkkaan määritelmään ei ole merkittävä. Kun liitokselle laskettu kestävyys MRd [kNm] jaetaan edelleen kiertymällä liitoksen jäykkyys yksikössä [kNm/rad].

Liimapuukehän osittain jäykkä puu-puu -liitos – Kauppahalli Joensuu
Liimapuukehien välipohjan primääripalkit liitettiin koottuihin pilareihin liitoksilla, joissa pystykuormat siirretään kokonaan tukipaineen välityksellä pilarille ja kiertojäykkyys muodostuu kahdelle samankeskeiselle ympyräkehälle sijoitettujen ruuvien sekä loven reunojen tukipaineen kautta. Rakennuksen keskialueella, MOD-B ja MOD-C välipohjan primääripalkin pystysuuntaiset tukireaktiot ovat niin suuret, että tukipintaa piti kasvattaa koko pilarin levyiseksi (450×165), mutta ulkoseinälinjoilla MOD-A ja MOD-D sekä vesikaton primääripalkkien osalta kaikissa liitoksissa tukireaktiot ovat pienemmät ja tukipinnaksi riitti kootun pilarin välikapulan muodostama ala (330×165). Kehän kasaamisen selkiyttämiseksi tukipintaa ei lähdetty vahvistamaan esimerkiksi täyskierreruuveilla ja myöskään laskennassa ympyräkehällä oleville ruuveille ei huomioitu pystykuormia.
Liitokseen on asennettu ensin sisäkehälle 2 x 12 kpl leveäkantaisia osakierreruuveja (Rothoblaas TBS 8,0 x 240), jotka kiristävät lovetun osapilarin (140 x 450) tiukasti palkin (165×585) kylkeä vasten. Sisäkehän säde on 135mm, sisäkehän ruuvit toimivat 1-leikkeisinä ja näiden ruuvien kierteinen osa uppoaa kokonaan palkkiin, jolloin pilari kiristyy ruuvin sileän varren osalla vapaasti. Pilarin vastakkaisilla puolilla ruuvausrasteria on kierretty 15°, jolloin ruuvien kärjet limittyvät vapaasti palkin sisällä (kuva 9).
Sisäkehän kiristävien ruuvien jälkeen liitokseen asennettiin 2 x 16 kpl sylinterikantaisia täyskierreruuveja (Rothoblaas VGZ 9,0 x 340), jotka lukitsevat vastakkain puristetut osat toisiinsa. Ulkokehän säde on 185mm, ulkokehän ruuvit toimivat 2-leikkeisinä ja näissä ruuveissa kanta asennetaan n. 20 mm upoksiin puun sisään (ruuvin kärki jää n. 25 mm etäisyydelle vastapuolen pinnasta), jolloin ulkokehän ruuvit toimivat tehokkaasti myös palotilanteessa. Myös ruuvien reunaetäisyyksissä on huomioitu R30 palonkestovaatimus RIL 205-2-2019 ohjeiden mukaisesti. Ulkokehällä ruuvausrastereita on kierretty 11,25°, jolloin ruuvien kärjet limittyvät puun sisällä riittävän kaukana toisistaan (kuva 9).

Näin toteutettuna liitoksessa on 24 kpl 8,0 mm ruuvien ja 64 kpl 9,0 mm ruuvien muodostamaa leikkautuvaa pintaa eli yhteensä 88 leikkautuvaa puikkoliitintä, jotka jakavat liitokseen kohdistuvan momentin tasaisesti koko liitosalueelle. Lisäksi ympyräsijoittelun ylä- ja alapuolelle lisättiin ristiruuviliitokset pilarin molemmilta puolilta asennettuna, jolloin liitokseen tuli vielä 8 kpl pitkiä täyskierreruuveja (Rothoblaas VGZ 9,0 x 340).
Suunnittelun alkuvaiheessa liitokseen hahmoteltiin ensin kierretankoja ja hammasvaarnalevyjä, mutta koska pulttien kiinnikeväli- ja reunaetäisyysvaatimukset ovat huomattavasti suuremmat, kuin suhteellisen ohuiden ruuvien, liitosalueelle ei olisi saatu mahtumaan riittävää määrää pultteja. Lisäksi pulttiliitoksissa tulee herkästi suuria kuormitushuippuja, jotka ovat puurakenteille ongelmallisia etenkin syytä vastaan kohtisuorassa kuormituksessa.
Puu-puu liitoksissa kaikille rakenteellisille ruuveille porattiin valmistuksen yhteydessä tehtaalla pilottireiät, jolloin työmaalla asennus pysyi selkeänä, kun ohjeistettiin asentamaan ensin sisäkehälle leveäkantaiset osakierreruuvit ja ulkokehälle sylinterikantaiset täyskierreruuvit jokaiseen reikään. Ruuvien valinnassa huomioitiin myös sama vääntiö (TX40), jolloin ruuvauskärkeä ei tarvinnut välillä vaihtaa.


Liimapuurungon rakennemalliin ei mallinnettu ruuveja, joten liimapuuosien toimittaja Versowood Oy teki vielä erillisen tuotantomallin, jossa myös kaikki ruuvien pilottireiät oli mallinnettu. Rakennemalli laadittiin Autodesk Revitillä ja tuotantomalli Tekla Structuresilla, joten tietomallinnuksessa tehtiin vielä hieman päällekkäistä työtä, mutta toisaalta samalla saatiin liimapuurungon osille kattava ristiintarkistus ja lopulta työmaalla kaikki osat kävivät paikalleen ilman ongelmia ja kaikki suunnitellut työstöt olivat kohdillaan!
Alemman vesikaton primääripalkeissa loven reunojen vaikutus kiertojäykkyyteen jätettiin huomioimatta ulkoseinälinjoilla, koska pilari ei jatku liitoksen yläpuolelle, mutta muuten toimintamalli on sama kuin välipohjan primääripalkkien liitoksissa. Ylemmän vesikaton liitoksilta ei edellytetty kiertojäykkyyttä, joten ruuvit on sijoitettu liitosalueelle kahteen riviin.
Pilarin liitos perustukseen – Kauppahalli Joensuu
Liimapuukehät on kiinnitetty perustuksiin pilarikengillä, jotka suunniteltiin kohteeseen kehän kasauksen asettamat vaatimukset sekä kootun pilarin tarjoamat mahdollisuudet huomioiden. Pilarikenkä on 2-osainen ja se kiinnitetään kootun pilarin osapilariin työmaalla ruuvaamalla. Kootun pilarin väli suljettiin lankulla, jolloin osapilarit altistuvat palotilanteessa vain kolmelta sivulta ja samalla pilarikengän kaikki ruuvit ovat palolta suojassa.


Asennettaessa pilarikenkä tuetaan tiiviisti pilarin kylkeä vasten ja kiristetään ensin pilarin pohjaan ”alhaalta” päin ruuvaamalla (Rothoblaas HBS Plate 10,0 x 180). Alhaalta päin asennettavien ruuvien tarkoituksena on kiristää teräsosa tiukasti pilaria vasten, jolloin osien väliin ei pääse jäämään myöhemmin liikkuvia välyksiä. Alhaalta päin asennettavien ruuvien reiät on sijoitettu pohjalevyssä olevien peruspulttien reikien kohdalle, joiden läpi pystytään poraamaan myös paksujen ruuvien vaatimat esireiät.

Pilarikenkien voimaliitos on tehty lyhyemmillä ruuveilla (Rothoblaas HBS Plate 8,0 x 100), joille ei tarvitse porata esireikiä. Peruspultteina on käytetty kuumasinkittyjä Peikko HPM 20 pultteja ja kutakin peruspulttia kohden liimapuuhun on asennettu 1 kpl 10,0 x 180 ruuveja sekä 24 kpl 8,0 x 100 ruuveja. Perustusliitoksessa on siis yhteensä 4kpl Peikko HPM20 peruspultteja, 1 kpl 10,0 x 180 ruuveja sekä 96kpl 8,0 x 100 ruuveja. Kehän kasauksen lopussa pilarikengät kytkettiin toisiinsa kuumasinkityillä välikeputkilla ja M16 pulteilla. Juurivaluja varten pilarikenkä muotitetaan pohjalevyn ulkopintojen linjaan ja kutistumaton juotosbetoni valetaan pilarikenkien väliin jäävästä 65 mm raosta. Valun yläpinta ulotetaan pohjalevyn yläpinnan tasalle, jolloin valupaine täyttää peruspilarin ja pohjalevyn välin tiiviisti.

Kohteessa pilarin liitos perustuksiin analysoitiin yksinkertaistuksen vuoksi täysin jäykkänä ja myös todellisuudessa liitos toiminee hyvin jäykästi verrattuna puu-puu -liitoksiin. Myös tälle perustusliitokselle pystyisi määrittämään laskennallisen jäykkyyden peruspulttiin kohdistuvasta vetorasituksesta aiheutuvan venymän sekä ruuvien leikkausrasituksesta aiheutuvan liitossiirtymän kautta. Perustusliitoksessa kulmanmuutos olisi määritettävä voimapariperiaatteella siten, että vedetyllä puolella huomioidaan sekä venyvä peruspultti että leikkautuvat ruuvit. Puristuvalla reunalla konservatiivisen arvon saa, kun huomioi pelkästään leikkautuvat ruuvit ja jättää tukipaineen pilarin alapään ja teräslevyn välillä huomioimatta.
Tulokset – Nurkkaliitosten jäykkyyden vaikutus kehän rasituksiin ja siirtymiin
Tätä artikkelia varten laadittiin erillinen vertailulaskelma Autodesk Robot Structural Analysis 2024 FEM-laskentaohjelmalla. Analyysi on tehty tasokehänä, jonka siirtymät tasoa vastaan kohtisuorassa suunnassa on estetty kehän nurkkapisteistä.

Vertaillaan tässä yhteydessä tuloksista kuvien avulla vain kehän momenttikuvaajia ja sivusiirtymiä Eurokoodi 0 (EC0) yhtälön 6.10b mukaisella murtorajatilan (MRT) kuormitusyhdistelmällä OP+100%TUULI+70%LUMI+70%HYÖTY. Tässä tarkastelussa tuulikuorma kohdistuu vain sivuseinään ja lumikuormissa on huomioitu ylempää kattoa vasten kinostuva lumi. Myös rakenteiden painosta, lumikuormasta ja hyötykuormasta aiheutuvat lisävaakavoimat on huomioitu ja ne vaikuttavat samaan suuntaan tuulikuorman kanssa. Lisäksi sivulle rakennetun lasipaviljongin kattorakenteiden tukireaktiot on huomioitu linjalla D.
Analyysin tuloksista nähdään, että osittain jäykillä liitoksilla nurkkien momenttirasituksia saadaan jaettua tasaisemmin kehän kaikille nurkille. Täysin jäykillä nurkilla analysoituna alemman vesikaton liitos keskilinjan pilariin saa maksimiarvon 66,32 kNm ja myös ulkoseinälinjalla on huippuarvona 47,46 kNm. Huomiona muista tuloksista, että kuormitusyhdistelmällä OP+100%LUMI+70%HYÖTY+60%TUULI alemman vesikaton liitos keskilinjan pilariin saa maksimiarvon 79,38 kNm (Tämä olisi hetkellisen aikaluokan määräävä rasitus). Kuormitusyhdistelmällä OP+100%LUMI+70%HYÖTY+0%TUULI kyseinen nurkka saa momenttirasituksen 76,00 kNm (Tämä olisi keskipitkän aikaluokan määräävä rasitus)

Kun nurkat vapautetaan niveliksi rasitukset jakautuvat rakenteessa selkeästi eri tavalla. Nyt huomionarvoista on, että kehän juurimomentit kasvavat selkeästi suuremmiksi, mitoittavan juurimomentin ollessa 64,53 kNm (Hetkellinen aikaluokka). Jos tarkastelusta jätetään tuulikuorma pois, eli mitoitus tehdään keskipitkän aikaluokan mukaisesti, juurimomentti pienenee huomattavasti. Täysin nivelnurkilla tehtynä alemman vesikaton primääripalkin maksimimomentiksi tulee 123,12 kNm kuormitusyhdistelmällä OP+100%LUMI+70%HYÖTY+0%TUULI (Keskipitkä aikaluokka), joten tästä tulisi katon primääripalkin määräävä kuormitustapaus. Myös välipohjan primääripalkki saa nivelöidyssä rakennemallissa suurimmat rasitukset. Kuvassa näkyvä huippuarvo 108,97 kNm on 3-aukkoisen välipohjan primääripalkin tukimomentti, eikä näin ollen suoraan rasita liitosta. Sen sijaan samassa liitoksessa näkyvä momentin arvo 55,68kNm aiheutuu vaakakuormista ja nurkkaliitos olisi mitoitettava vähintään tätä arvoa vastaavaksi.

Osittain jäykillä nurkilla toteutettuna momentit jakautuvat tasaisemmin sekä kehän juuressa, nurkissa että rakenneosissa. Kuvasta 17 nähdään, että tarkasteltavan kuormitusyhdistelmän määräävä nurkkamomentti on 38,59 kNm (Hetkellinen aikaluokka), määräävä juurimomentti perustusliitokselle on 46,46 kNm ja määräävä momentti katon primääripalkille on 76,47 kNm. Muilla kuormitusyhdistelmillä tarkasteltuna osittain jäykillä liitoksilla analysoidut tulokset ovat linjassa aiempien havaintojen kanssa eli nurkkamomentit ovat pienempiä kuin täysin jäykillä liitoksilla analysoidussa kehässä ja kenttämomentit ovat vastaavasti pienempiä, kuin täysin nivelinä analysoiduissa kehissä.

Yhteenveto, tulosten tulkinta ja pohdinta
Vertailun perusteella voidaan todeta, että osittain jäykkiä liitoksia hyödyntämällä on mahdollista keventää kriittisten kohtien rasitusta siten, että saavutetaan kokonaistaloudellisesti tehokkaampi ratkaisu. Tässäkin kohteessa määritettiin rakenneosien alustavat mitat ensin irrallisina palkkeina ja pilareina. Seuraavassa vaiheessa kehä analysoitiin kokonaisuutena ja alustavasti valittuja dimensioita saatiin hieman pienemmiksi. Lopuksi kehän rakennemallia vielä muokattiin määrittämällä liitoksille laskennalliset jäykkyydet ja ratkaisu hiottiin valmiiksi.
Perustusliitoksen lujuus- ja jäykkyysominaisuuksien huomiointi rakennemallissa vaikuttaisi varmasti jonkin verran rasitusten jakautumiseen rakennejärjestelmässä. Karelia-ammattikorkeakoulussa opiskellut Pasi Muukkonen teki keväällä 2022 opinnäytetyönään A-insinöörit Oy:n tilaaman selvityksen CLT-puikkoliitoksen kestävyys- ja siirtymäominaisuuksien määritys. Tutkimuksen tuloksista nähtiin, että EC5 ohjeiden sekä ruuvin ETA-dokumentin mukaisesti lasketut arvot ovat varsin yhteneviä Karelia AMK:n puurakenteiden laboratoriossa tehtyjen koekuormitusten tulosten kanssa. Vastaavalla tavalla testaamalla olisi mahdollista selvittää myös Joensuun Kauppahalliin toteutetun perustusliitoksen lujuus- ja jäykkyysominaisuuksien yhtenevyys laskennallisiin arvoihin.
Vaikka täysin jäykillä liitoksilla toteutettuna katon primääripalkit olisi saatu vielä nykyistä matalammiksi, olisi nurkkaan kohdistuva momenttirasitus vaatinut jonkin muun ratkaisun nyt toteutetun lovetun ruuviliitoksen tilalle. Kuten kuvista 9 ja 10 voidaan havaita, nykyinen liitosalue on jo varsin täynnä ruuveja, joten toteutetulle liitosalueelle (450 x 585) ei tehokkaasti saa enää lisää kiinnikkeitä. Yhtenä vaihtoehtona olisi voinut olla kitkan hyödyntäminen (kynsilevyt pilarin ja palkin väliin ja ruuvit kahdelle ympyrän kehälle kuten nytkin). Toisena vaihtoehtona olisi ollut kasvattaa liitosaluetta pilarien mittoja kasvattamalla, jolloin ympyrän kehät olisi saatu suuremmiksi ja näin ollen kehille olisi mahtunut enemmän ruuveja. Tämä kuitenkin olisi johtanut ”ylimääräisen” liimapuun lisäämiseen pilareihin, joten valittu ratkaisu on perusteltavissa kokonaistaloudellisuudella.
Osittain jäykkien puuliitosten on maailmallakin selkeästi ajankohtainen aihe, koska varsin lyhyellä artikkelitietokantojen tutkimisella löytyi useita tuoreita tutkimustuloksia kaikilta mantereilta. Erityisen hyvin Joensuun Kauppahallin liitoksia vastasi Sveitsiläisen tutkimusryhmän tutkimus Rotational Stiffness and Carrying Capacity of Timber Frame Corners with Dowel Type Connections vuodelta 2021, jossa oli vertailtu vaarnatappi+pultti liitosta täyskierreruuveilla toteutettuun liitokseen. Myös tässä tutkimuksessa kiinnikkeet oli asennettu kahdelle samankeskeisen ympyrän kehälle, mutta liitosalue oli huomattavasti suurempi (700×700). Tutkimustulokset olivat varsin hyvin linjassaan Joensuun Kauppahalliin toteutettujen liitosten kanssa, mutta toki Sveitsissä testatut liitokset olivat merkittävästi kestävämpiä ja jäykempiä liitosalueen suuremmasta koosta, järeämmistä kiinnikkeistä ja suuremmasta kiinnikemäärästä johtuen.
Osassa tutkimuksista ruuviliitokset mainitaan hauraammiksi, kuin pulttiliitokset. Joensuun Kauppahalliin toteutetuissa liitoksissa haurasmurron aiheuttamaa riskiä laskee se, että palkit on asennettu pilariin tehtyihin loviin, jolloin rakenne ei missään vaiheessa ole pelkästään ruuvien varassa. Normaalitilanteessa kuormat siirtyvät tukipaineen välityksellä rakenneosalta toiselle ja liitosten ruuveja tarvitaan oikeastaan vasta, kun kehään kohdistuu vaakakuormia ja niistä aiheutuvia nurkkamomentteja. Lisäksi Joensuun Kauppahallin liitokseen on yhdistetty sitkeästi toimivia osakierreruuveja ja jäykästi toimivia täyskierreruuveja, jotka osaltaan muodostavat liitokseen sitkeyttä, jäykkyyttä, lujuutta ja varmuutta.
Uskon myös, että tarkastellun kaltaisissa liitoksissa haurasmurtoja ilmenee vasta kun liitoksen kiertymät, siirtymätilat, kasvavat huomattavan suuriksi ja tällainen tilanne ei normaaliolosuhteissa tulle koskaan vastaan. Joensuun Kauppahallissa ääritilanteen liitossiirtymät ruuveissa ovat laskennallisesti vain noin 1,2…1,6 mm, jolloin liitoksen kiertymä on vain luokkaa 0,009 radiaania ja tällainen muodonmuutos ei varmastikaan vielä ruuvia puun sisään katkaise, vaan siirtymä näkyy liitosalueella paikallisesti puun reunapuristuslujuuden ylittymisenä; ruuvin reikä siis venyy soikeaksi ja puussa näkyy pientä paikallista halkeilua.
Osittain jäykkien liitosten käyttö puurakenteissakin on tämän kokemuksen mukaan hyödyllistä, mutta varsin harvoin rakennesuunnittelijalle tulee tehtäväksi tällaisia kohteita, joissa menetelmää pystyy tehokkaasti käyttämään. Ennakkotietojen mukaan Eurokoodi 5 seuraavaan versioon on tulossa nelinkertainen määrä sivuja verrattuna nykyiseen ja vaikka tämä tuo paljon uutta opiskeltavaa, se myös tarjoaa varmasti entistä kattavamman työkalupakin myös liitosten suunnitteluun.
KIRJOITTAJA:
Arto Haaranen toimii rakennustekniikan lehtorina Karelia-ammattikorkeakoulussa. Opetus- ja ohjaustehtävien lisäksi hän osallistuu myös TKI-hankkeisiin. Ammattitaitoa ylläpitääkseen Haaranentekee myös rakennesuunnittelutehtäviä sivutoimisesti joko oman yrityksen kautta tai kuten Joensuun Kauppahalli -projektissa, Insinööritoimisto Kantelinen Oy:n työntekijänä.

Lähteet
Johanides, M.; Lokaj, A.; Mikolasek, D.; Mynarcik, P.; Dobes, P.; Sucharda, O. (2022) Timber Semirigid Frame Connection with Improved Deformation Capacity and Ductility. Buildings 2022, 12, 583. https://doi.org/10.3390/buildings12050583
Johanides, M.; Mikolasek, D.; Lokaj, A.; Mynarcik, P.; Marcalikova, Z.; Sucharda, O. (2021) Rotational Stiffness and Carrying Capacity of Timber Frame Corners with Dowel Type Connections. Materials 2021, 14, 7429. https://doi.org/10.3390/ma14237429
Muukkonen, P., (2022), CLT-puikkoliitoksen kestävyys- ja siirtymäominaisuuksien määritys (opinnäytetyö), 65s., https://urn.fi/URN:NBN:fi:amk-202205118606
Schweigler, M., Bader, T.K., Hochreiner, G., (2018) Engineering modeling of semi-rigid joints with dowel-type fasteners for nonlinear analysis of timber structures, Engineering Structures, Volume 171, 2018, Pages 123-139, ISSN 0141-0296, https://doi.org/10.1016/j.engstruct.2018.05.063.
SFS-EN 1990. (2006). Eurokoodi 0. Rakenteiden suunnitteluperusteet. Helsinki: Suomen Standardoimisliitto SFS.
SFS-EN 1993-1-8. (2005). Eurokoodi 3. Teräsrakenteiden suunnittelu. Osa 1–8: Liitosten mitoitus. Helsinki: Suomen Standardoimisliitto SFS.
SFS-EN 1995-1-1. (2014). Eurokoodi 5. Puurakenteiden suunnittelu. Osa 1–1: Yleiset säännöt ja rakennuksia koskevat säännöt. Helsinki: Suomen Standardoimisliitto SFS.
Suomen rakennusinsinöörien liitto (2017). RIL 205-1-2017 Puurakenteiden suunnitteluohje, Suomen Rakennusinsinöörien Liitto, Helsinki, 231 s.
Suomen rakennusinsinöörien liitto (2019). RIL 205-1-2019 Puurakenteiden palomitoitus, Suomen Rakennusinsinöörien Liitto, Helsinki, 93 s.
Ympäristöministeriö, (2016), Ympäristöministeriön ohje puurakenteista, Suomen rakentamismääräyskokoelma, 33 s., https://ym.fi/documents/1410903/38439968/lopullinen-puurakenteet-F48BD8DA_D384_481B_BC09_FE51691B8BE8-123939.pdf/7b5d70f7-f18f-66fe-8da1-d467e39c5ffe/lopullinen-puurakenteet-F48BD8DA_D384_481B_BC09_FE51691B8BE8-123939.pdf?t=1603260650690
Artikkeli on tehty osana Pohjois-Karjalan maakuntaliiton sekä Itä- ja Pohjois-Suomen EAKR ohjelman rahoittamaa Rakentamisen vihreä siirtymä (RAVI) -hanketta.