Ääneneristävyys korkeassa puurakentamisessa – Lighthouse Joensuu

Kuva: A-Insinöörit Oy
Ääneneristävyys on yksi puurakentamisen vaativimmista suunnittelun osa-alueista. Viimeisin lainsäädännön muutos laajensi askeläänten mittausalueen alkamaan 50 Hz:stä (spektripainotustermi CI,50-2500). Matalia taajuuksia on puukerrostaloissa pyritty vaimentamaan esimerkiksi erottamalla eri kerrosten kantavia rakenteita toisistaan ääneneristämiseen tarkoitettuja materiaaleja käyttäen. Korkeassa rakentamisessa tällaiset ratkaisut ovat kuitenkin rakennuksen jäykistämisen kannalta haasteellisia ja äänitekninen toimivuus on varmistettava yleensä muilla ratkaisuilla.
Teksti ja kuvat: Ville Mertanen ja Timo Pakarinen
Artikkeli on julkaistu Puu-lehdessä 2/2020.
Read the article in English: Sound insulation in high-rise wood buildings – Lighthouse Joensuu

Kuva: Arkkitehtitoimisto Arcadia Oy
Lighthouse Joensuu on Suomen korkein puukerrostalo. Lähes 50 metrin korkeus ja vaatimus siitä, että rakennuksen kaikki kantavat rakenteet ovat puuta asettivat haasteita rakennetekniikalle, mutta myös äänitekniselle suunnittelulle. Rakennuksen jäykistyksessä hyödynnettiin jälkijännitettyä vetotankoja ja kantavat rakenteet toteutettiin niin sanotuilla kovilla liitoksilla eli ilman tärinän-eristysmateriaaleja. Kova liitos on parempi rakennuksen jäykistyksen osalta, mutta se mahdollistaa äänelle suoran siirtymisreitin ja siksi äänen kulkeutuminen on estettävä muilla ratkaisuilla. Äänitekniikan osalta päädyttiin lopulta studiorakenteeseen, jossa huoneistojen kattolevytykset on erotettu rungosta jousirangalla ja seinärakenteissa on puukoolauksen kanssa käytetty ääntä vaimentavaa villakerrosta.
Välipohjarakenteena on kelluva betonilaatta askeläänieristeen päällä ja kantavana rakenteena toimii CLT. Osana Karelia-ammattikorkeakoulun Lighthouse-kohteeseen liittyviä tutkimustoimenpiteitä selvitettiin rakennuksessa käytettyjen rakenneratkaisujen ääniteknistä toimintaa. Samalla haluttiin myös mitata ääneneristävyyden kehittymistä eri rakennusvaiheissa sekä välipohjarakenteiden että huoneistojen välisen seinän osalta (kuvat 3). Mittauksissa noudatettiin SFS-EN ISO 16283-1 ja SFS-EN ISO 16283-2 standardeja ja ne suoritettiin siihen sopivalla mittauslaitteistoilla.
Kuva 3. Eri rakentamisen vaiheet, missä äänimittauksia tehtiin: huoneistot osin levytettyinä, läpiviennit tiivistämättä, ovet asentamatta (kuva vasemmalla), seinät levytetty ja tiivistetty, ovet asennettu (kuva keskellä) ja asunnot valmiina ja kalustettuina (kuva oikealla).
Kuvat: Jarno Artika
Askeläänimittaukset
Ensimmäisten mittausten aikana välipohjarakenteena oli betoni (kelluva laatta), askeläänieriste ja CLT. Seuraavissa mittaustilanteissa välipohjarakenteeseen lisättiin vinyylilankku ja alapuolisen asunnon kattoon koolaus, eriste, jousiranka sekä kipsilevytys. Askeläänen eristävyys parantui huomattavasti kaikissa huoneistoissa rakentamisen edetessä (kuvaaja 1).

Kuvaajasta 2 on huomattavissa korkeataajuuksisten äänten leikkautumista, mikä viittaa asuntojen läpivientien tiivistämisen vaikutuksiin. Myös pintamateriaalien asennuksen on huomattu tutkimuksissa leikkaavan eritoten korkeita taajuuksia [1]. Paranemista tapahtui myös matalilla taajuuksilla ja se johtunee ääniranka- sekä levyrakenteiden asennuksesta. Viimeistelyt sekä kalustaminen eivät näytä merkittävästi enää parantavan askeläänen eristävyyttä (kuvaaja 1).

Nykyisillä määräyksillä askeläänen raja-arvona asuntojen välillä on 53 dB L’nT,w+C I, 50-2500. Lighthousen asuntojen ääneneristävyydet täyttivät juuri tämän arvon. Joensuu Lighthousen rakennuslupa oli anottu ennen vuotta 2018, mutta tässä tutkimuksessa askelääneneristävyyden tuloksia on arvioitu uusien 2018 vuoden alusta voimaan tulleen asetuksen mukaisesti. Yksi puuvälipohjien osalta merkittävimpiä lainsäädännön muutoksia oli, että laskennassa huomioidaan nykyisin spektripainotustermi CI,50-2500, minkä huomioiminen heikensi mittaustuloksia merkittävästi (5-8 dB). Äänitekniikan osalta tämän tutkimuksen tulokset osoittavat, että nykyiset määräykset haastavat puurakentamisen rakenne-ratkaisut.
Ilmaäänimittaukset
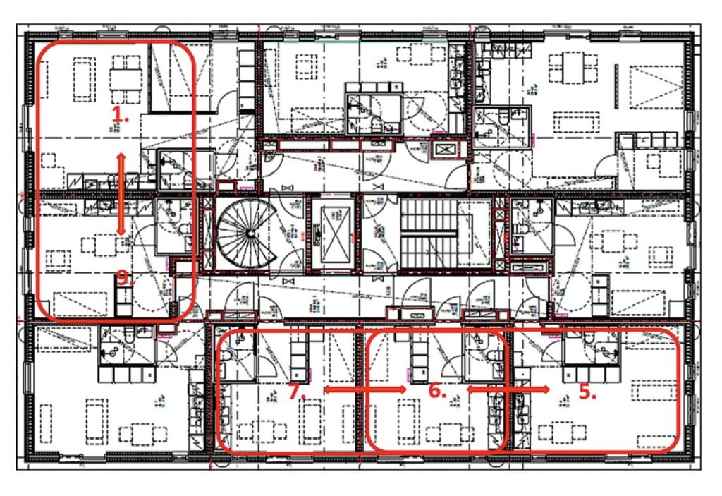
Ilmaääneneristävyyden mittaukset suoritettiin ensimmäisen kerroksen huoneistoissa siten, että ääneneristävyyden arvo määritettiin kolmen huoneistojen välisen seinän osalta. Kuvassa 4 on esitetty, miten huoneistot ja huoneistojen väliset seinät sijaitsevat rakennuksessa.

Ilmaääneneristävyyden osalta nykyisen asetuksen alaraja on DnT,w 55 dB. Kohteessa päästiin riittävään ilmaääneneristävyyteen kaikissa mitatuissa asunnoissa. Seinien (kipsilevyjen saumaus) ja läpivientien tiivistys paransi ilmaäänen eristävyyttä 6 dB asuntojen 5-6 välillä, mutta asuntojen 6-7 välillä se heikentyi 1dB (kuvaaja 3). Merkittävä parannus asuntojen 5-6 välillä voi johtua esimerkiksi asuntojen kalustamisesta, 1dB heikkeneminen johtuu todennäköisesti mittausepätarkkuuksista. Asuntojen 1-9 mittauksissa tulos oli poikkeava, sillä ääneneristävyys jo lähtötilanteessa täytti raja-arvon 55 dB eikä se siitä parantunut. Tämä voi johtua siitä, että asunnon läpiviennit ovat jostain syystä olleet tiiviimmät jo lähtövaiheessa kuin verrokkihuoneistoissa.

Asukastutkimus
Ääneneristävyys mittausten lisäksi haluttiin selvittää pienimuotoisella haastattelu-tutkimuksella, miten Joensuun Lighthousen asukkaat kokevat rakennuksen äänimaailman. Haastattelututkimuksen otos oli pieni mutta antanee suuntaa siitä, miten asukkaat kokevat talon rakennusakustiikan toimivan. Haastateltavat olivat asuneet rakennuksessa haastatteluhetkellä noin puoli vuotta ja heidän asuntonsa sijaitsivat eri kerroksissa.
Kysyttäessä asukkailta millaisia ääniä huoneistoon kuuluu, mainittiin jokaisessa haastattelussa aluksi äänet ulkoa, liikenne ja rakentaminen. Nämä äänet kuuluivat vaimeana myös haastatteluhetkellä jokaisessa asunnossa. Lisäksi mainittiin, että askeläänet kuuluivat joskus, jos kovasti kävellään yläpuolella olevassa huoneistossa. Lisäksi bassoäänet mainittiin joskus kuuluvan kuten myös porrashuoneesta lähimmän naapurin oven kiinni laittaminen. Lisäksi mainittiin, että jos on muuten aivan hiljaista niin hissin käytöstä aiheutuvan äänen voi joskus kuulla. Merkillepantavaa oli, että jokainen haastateltava mainitsi, että vessan ja suihkun äänet eivät kuulu ollenkaan. Kaikkien haastateltavien mielipide oli kuitenkin, ettei mitään asuntoon kuuluvaa ääntä koettu häiritsevästi ja eräs haastateltu mainitsikin, että äänekkäin asia asunnossa on jääkaappi.
Haastattelut antoivat erittäin onnistuneen kuvan rakennuksen äänimaisemasta. Tuntemukset ovat kuitenkin aina henkilökohtaisia ja pitkälti kyse hyvässä ääniympäristössä on myös tottumuksista ja mieltymyksistä. Asukkaiden antama keskiarvoarvosana rakennuksen äänimaailmalle oli 9 (asteikolla 0-10) ja moni haastateltu koki äänimaailman vastaavan omakotitalon tasoa. Kohteessa tullaan tekemään kattavampi asukaskysely vuoden 2020 aikana.
Pohdinta
Lighthouse Joensuun äänitekniikkaan liittyvät tutkimukset sisälsivät kaksi osa-aluetta, ääneneristävyysmittaukset sekä pienen käyttäjäkokemushaastattelun. Suoritettujen mittausten perusteella voidaan todeta, että talon rakenteet näyttäisivät täyttävän ääneneristävyysvaatimukset sekä askeläänen että ilmaäänen osalta. Mittauksissa saadut eristävyyden arvot olivat juuri vaatimukset täyttämisen rajoilla. Toisaalta asukaskokemukset olivat kaikilla haastatelluilla erittäin myönteiset talon rakennusakustiikan toimimisesta. Taloa verrattiin äänimaailmalta omakotitalo-tasoiseksi tai todettiin, että tämä on hiljaisin talo, jossa on asunut. Tulosten perusteella näyttäisi siltä, että mittaustulosten ja asukaskokemusten välillä on jonkinlainen ristiriita. Mittaustulosten valossa raja-arvot juuri saavutetaan, mutta asukaskokemuksen mukaan ääniteknisesti talo toimii erittäin hyvin.
Standardin mukaista testausasetelmaa ja askeläänikojetta äänilähteenä onkin kritisoitu paljon vuosien saatossa. Useissa tutkimuksissa on osoitettu nykyisen askeläänen mittaustavan korreloivan huonosti ihmisten subjektiiviseen kokemukseen tyypillisen aistiärsykkeen kanssa kuten esim. kävelyyn sukat jalassa yläpuolisessa asunnossa [2, 3]. Nykyisen menetelmän mittaukset korreloivat parhaiten kovapohjaisilla kengillä kävelyyn sisätiloissa, mikä ei suomalaisessa asutussa ympäristössä ole kovin tyypillistä.
Asiaa on mahdollista myös pohtia siten, että jos juuri ja juuri raja-arvot täyttävä ääniympäristö on näin erinomainen haastattelututkimuksen mukaan, niin voisiko asetuksessa rakennuksen ääniympäristöstä olla erilaisia luokituksia kuten on toteutettu sisäilman suhteen s1, s2 ja s3 luokitukset? Tämä mahdollistaisi sen, että ääneneristävyydelle olisi useampi raja-arvo ja käytettävä valittaisiin rakennuslupavaiheessa sen mukaisesti, mikä on rakennuksen käyttötarkoitus sekä laatu- ja vaatimustaso.
Lähteet:
[1] Evaluation of impact sound reduction of floor coverings on timber and timber-concrete floors using vibration measurements a. Pereira 1 , d. Mateus 1 , l. Godinho, s. Monteiro 1 , a. Dias 1
[2] Välipohjien askelääneneristyksen arviointi eri askelääniherätteiden perusteella. Lietzen J. 2012 s.101
[3] Rating the Impact Sound Insulation of Concrete Floors with Single-Number Quantities Based on a Psychoacoustic Experiment. Kylliäinen M. 2019
- Lue Puu-lehti 2/2020 kokonaisuudessaan.
- Tilaa Puu-lehti itsellesi (maksuton SAFA:n, RIL:n, RIA:n, SI:n, SIO:n, TKO:n, RKL:n, RTY:n ja Ornamon henkilö- ja opiskelijajäsenille kotiosoitteeseen postitettuna)



